Beril Model Residence

Beril Model Residence

Beril Model Residence

Precio

US$ 66,000

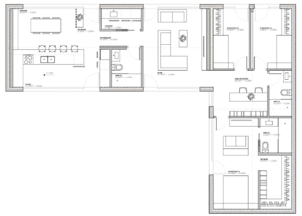
Área de Construccion

120 mt2

Características

Tiempo de Entrega

SHARE